Acquisto

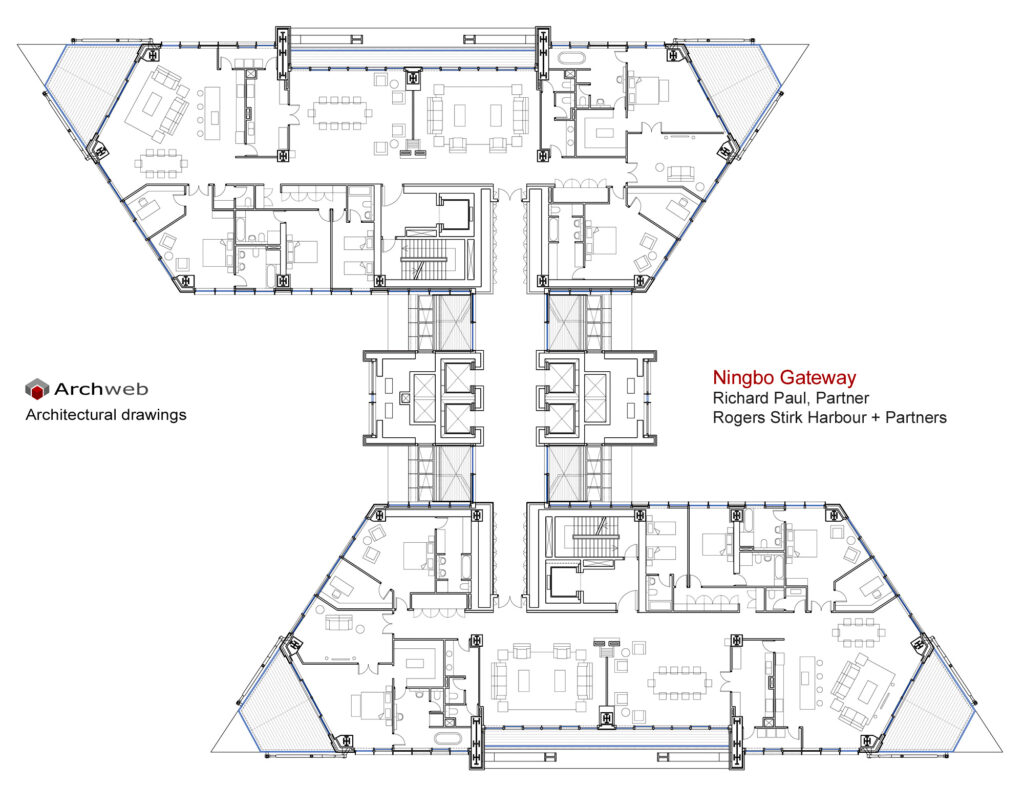
Ningbo Gateway Residential tower

2D

L'immagine di anteprima del progetto di questa architettura deriva direttamente dal nostro disegno dwg e rappresenta esattamente il contenuto del file dwg. Il disegno è ben ordinato in layer e ottimizzato per la stampa in scala 1:100.
Il file .ctb per gli spessori di stampa è scaricabile da qui.

Potete avere i file cliccando sul pulsante "Acquista ora", scegliendo la modalità di pagamento preferita e versando il contributo di 12,00 euro.
 

Come funziona il download?

Per scaricare i file dal sito Archweb.com esistono 4 tipologie di download, identificate da 4 colori differenti. Scopri gli abbonamenti

Gratuito
per tutti

Gratuito
per utenti Archweb

Abbonamento
per utenti Premium

Acquisto singolo
paga 1 e scarica 1