Architetture

Museo di Francoforte

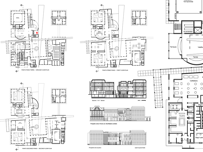
Richard Meier – Museo delle Arti applicate (MAK), 1979-1985

Il Museum Angewandte Kunst si trova a Francoforte sul Meno, in Germania e fa parte del Museumsufer. Le mostre alternate raccontano storie di valori culturali e mutevoli condizioni di vita. Oltre a ciò, fanno continuamente riferimento alla domanda su cosa sia l'arte applicata oggi e possa essere e dimostrare il campo di tensione tra funzione e valore estetico. L'architettura che ospita il Museum Angewandte Kunst è stata progettata da Richard Meier. Integrando la villa neoclassica della famiglia Metzler costruita nell'Ottocento, ha creato un insieme costituito dal parco circostante, dalla villa e dal nuovo edificio. Con la sua riapertura nell'aprile 2013 e il ripristino dell'architettura Meier al suo splendore originale.
 

L'architettura
Se contempliamo l'edificio del Museum Angewandte Kunst, ci vengono in mente le case residenziali di Le Corbusier. Per l'orientamento stilistico, l'architetto Richard Meier guarda all'architettura classica moderna, alle sue forme semplici e ai corpi spaziali chiaramente articolati. Alla fine degli anni '60, Richard Meier apparteneva al gruppo di architetti "New York Five", che sviluppò ulteriormente lo stile funzionale del modernismo europeo degli anni '20 e '30 nella tradizione del primo Le Corbusier. Il loro attributo comune è il colore bianco. Nel suo progetto per il Museo Angewandte Kunst di Francoforte, Meier ha integrato la villa neoclassica della famiglia Metzler esistente sin dal diciannovesimo secolo e ha così creato un insieme costituito dal parco circostante, dalla villa e dal nuovo edificio.

Museum Angewandte Kunst e Villa Metzler
Il museo è stato dedicato il 25 aprile 1985 dopo un periodo di costruzione di tre anni. Il nuovo edificio è un complesso a forma di L composto da tre cubi che circondano letteralmente Villa Metzler e si uniscono a formare una piazza. La villa ha fornito la base per le dimensioni dei tre cubi. Al centro dei quattro cubi si trova un cortile interno dal quale si accede all'ingresso del museo. All'interno dell'edificio, una rampa pedonale collega i livelli espositivi inondati di luce. Le ampie finestre collegano generosamente l'interno con i dintorni del museo.
Dalla primavera del 2013, a seguito di una fase di alterazione strutturale in cui sono state rimosse le vecchie partizioni e le aggiunte strutturali degli anni '90, i visitatori hanno nuovamente avuto l'opportunità di sperimentare l'architettura originale di Richard Meier: spazi inondati di luce, che si incastrano generosamente e garantiscono una vista del parco e del fiume.
Fonte: tradotto dalla versione inglese di Wikipedia 

Progetti che possono essere acquistati

Museo delle Arti Decorative di Francoforte

2D

16 €

Museo di Francoforte (MAK) 3D

2D

12 €

Come funziona il download?

Per scaricare i file dal sito Archweb.com esistono 4 tipologie di download, identificate da 4 colori differenti. Scopri gli abbonamenti

Gratuito
per tutti

Gratuito
per utenti Archweb

Abbonamento
per utenti Premium

Acquisto singolo
paga 1 e scarica 1