Architetture

Palazzina San Maurizio a Monte Mario

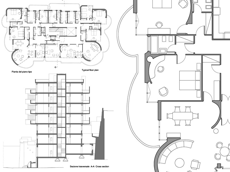
Luigi Moretti – Casa a Monte Mario, Roma 1962-1965

Un movimento erompente, dall’interno all’esterno
La costruzione – dice Moretti – è posta sul versante di Monte Mario, steso verso Roma, in una zona ancora oggi non scempia di verde. Tutto questo versante si apre alla vista della cupola di S. Pietro; viene in mente l’evo medio quando dai pellegrini, che venivano dal Nord, dalla Cassia, e scorciavano per queste pendici l’ultimo loro tragitto verso la città santa, Monte Mario era chiamato Mons-joie, perchè da esso si scorgeva per la prima volta la anelata basilica di S. Pietro e la commozione e la letizia erano perciò grandi.
Questa architettura è il tentativo di dare forma a un sentimento di violenta espansione che dall’interno delle strutture vuole versarsi verso l’esterno: una carica di energia che dall’interno vuole esplodere verso l’esterno e le sue forze contrarie e contraddittorie.

Le terrazze, vasche orizzontali sovrapposte, hanno eliminato, visivamente, tutta la muratura verticale; il perimetro di chiusura, arretrato, scompare, lasciando evidente il protendersi dell’interno verso l’esterno. Non esiste più una ‘facciata’, ma una curva superficie continua su tutti i lati, nata da un libero disegno, non da regole fisse o esigenze strutturali

Questo testo scritto dall’architetto Luigi Moretti è stato pubblicato su Domus 428/luglio 1965 per introdurre il suo progetto ai lettori della rivista.

Progetti che possono essere acquistati

Palazzina San Maurizio a Monte Mario

2D

20 €

fotografie della palazzina

Palazzina San Maurizio a Monte Mario

Come funziona il download?

Per scaricare i file dal sito Archweb.com esistono 4 tipologie di download, identificate da 4 colori differenti. Scopri gli abbonamenti

Gratuito
per tutti

Gratuito
per utenti Archweb

Abbonamento
per utenti Premium

Acquisto singolo
paga 1 e scarica 1