Gallerie

Centro InfoSapienza “Ragno blu”

Edificio progettato dallo Studio di Architettura Metamorph

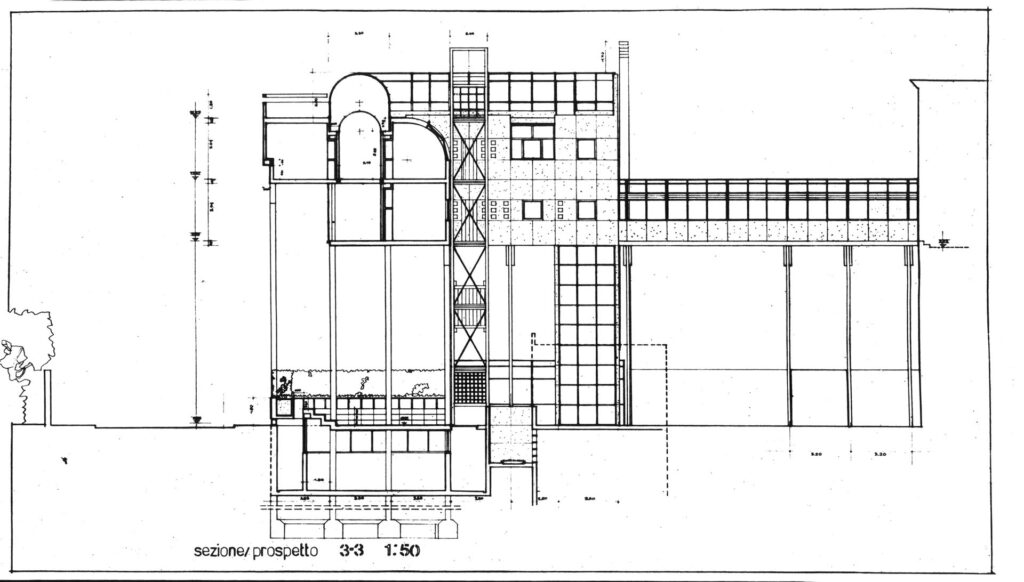
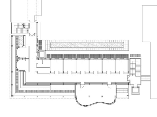
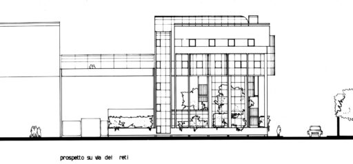
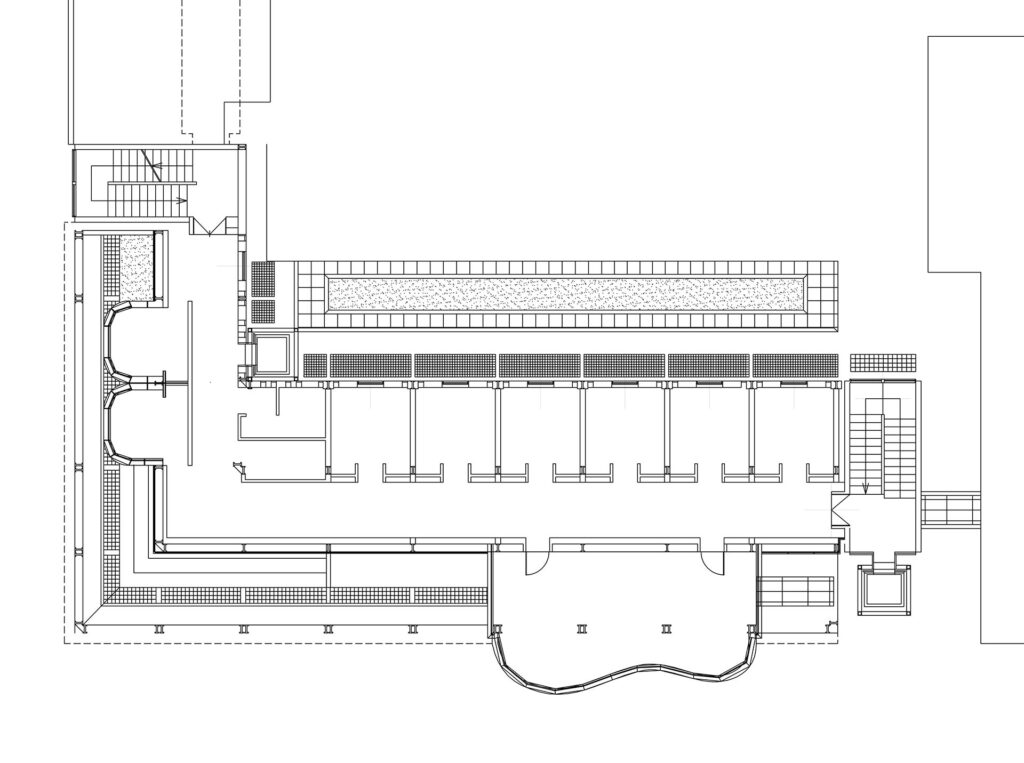
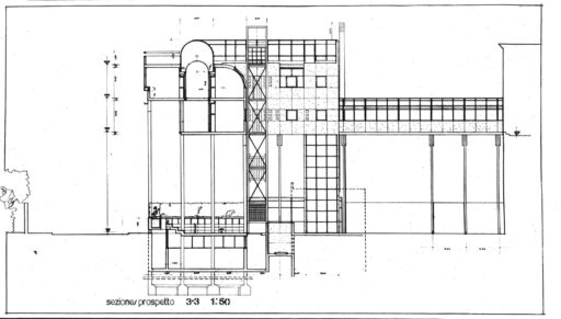
Il Centro InfoSapienza "Ragno blu" è un'opera distintiva progettata dallo studio di Architettura Metamorph nel 1980. Questo edificio, caratterizzato da una struttura innovativa e audace, fonde tecnologia e design in una sintesi architettonica unica. La visione futuristica e l'eleganza strutturale del "Ragno blu" è una testimonianza concreta della capacità di Metamorph di tradurre idee visionarie in realtà architettoniche di grande impatto visivo e funzionale.

Il progetto nasce come ampliamento dell’Istituto di Neuropsichiatria Infantile dell'Università di Roma nel quartiere di San Lorenzo.
Oggi l’edificio è la sede del Centro InfoSapienza ristrutturato nel 2012 dallo studio Metamorph.
L'immagine esterna è rimasta inalterata mentre gli spazi interni sono stati adeguati alle nuove funzioni.

La ristrutturazione ha consentito di predisporre una nuova sala macchine (Ced) destinata a ospitare apparati e piattaforme hardware dedicate all’erogazione dei servizi informatici e di comunicazione dell'Ateneo. 

Metamorph Architetti | Fonte: https://www.studio-metamorph.it/