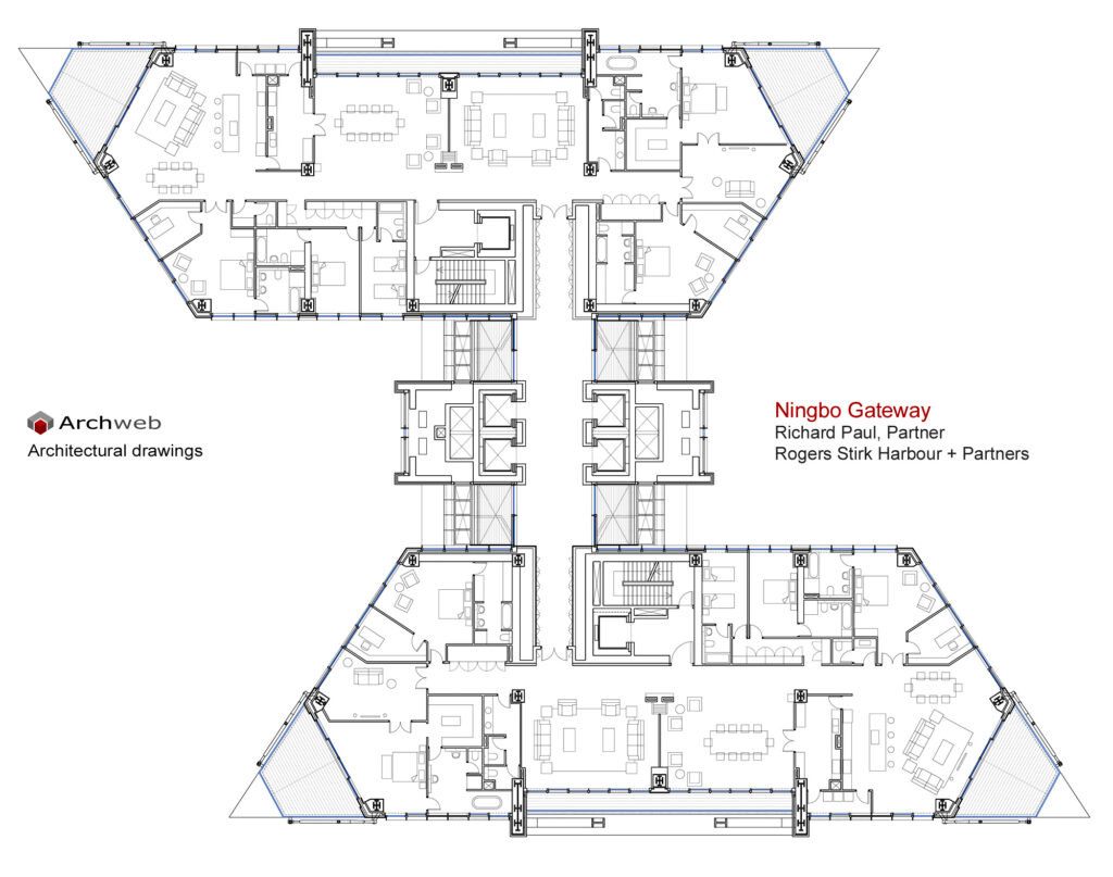
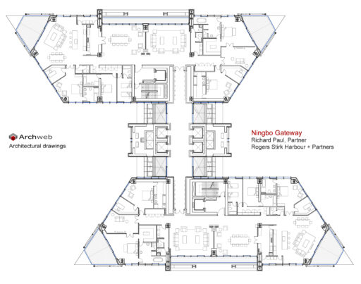
Ningbo Gateway
Rogers Stirk Harbour + Partners, Richard Paul, Partner, 2009 - 2018
Situato sulle rive della baia di Hangzhou, due torri a gradoni segnano l'angolo sud-ovest della città cinese del più nuovo distretto di Ningbo, creato come parte di un piano generale del 2008. La coppia di torri residenziali alte 152 metri (500 piedi) si trovano in prossimità dell'entrata alla baia.
Ogni edificio comprende 150 unità, di dimensioni variabili da una a sei camere da letto e comprende attici, appartamenti su due piani e villette. Un ingresso a doppia altezza per la prima torre collega gli appartamenti con un centro benessere e spa situato in un padiglione adiacente. A livello del suolo, è stata creata una nuova banchina esposta a sud come focus per residenti e visitatori.Vedi la descrizione completa e i disegni dwg del progetto....>>
Ningbo Gateway
Autore
Category Architetture Contemporanee