Cowes House Isle of Wight
James Stirling & James Gowan – Cowes house Isle of Wight, 1956
Luogo
Isola di Wight, Inghilterra
Anno
1956
Architetto
James Stirling
La casa dell’Isola di Wight è stata progettata da James Gowan e poi inserita nella pratica per essere pubblicata insieme al progetto Ham Common di Stirling.
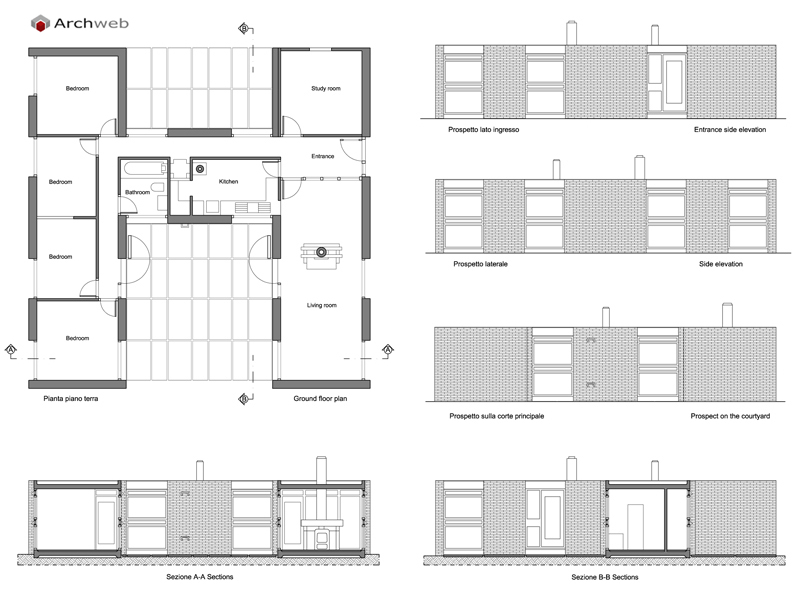
La casa occupa quasi tutta la larghezza del terreno rettangolare a disposizione.
Il progetto in pianta ha la forma della lettera H, per cui si formano due cortili che si aprono verso il giardino anteriore e posteriore. I materiali esterni sono molto semplici, mattoni a vista e legno naturale per le finestre a tutta altezza. Le finestre sono praticamente modulari, si ripetono quindi lungo i prospetti interrompendo la continuità della superfice in mattoni.
La distribuzione degli ambienti e molto chiara, la zona notte in un ala della pianta, la zona giorno dalla parte opposta, i servizi, bagno e cucina al centro.

Progetti che possono essere acquistati
2D
20 €
Come funziona il download?
Per scaricare i file dal sito Archweb.com esistono 4 tipologie di download, identificate da 4 colori differenti. Scopri gli abbonamenti
Gratuito
per tutti
Gratuito
per utenti Archweb
Abbonamento
per utenti Premium
Acquisto singolo
paga 1 e scarica 1