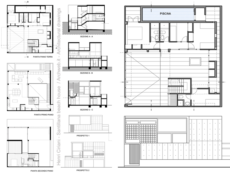
Santillana Beach house
Henri Ciriani, Playa Escondida, Santillana Beach house, Lima, Peru, 1998
Luogo
Lima, Peru
Anno
1998
Architetto
Henri Ciriani
L’interno e l’esterno sono fusi insieme. Gli elementi in calcestruzzo danno continuità all’architettura della casa.
Il calcestruzzo rappresenta per me la libertà di costruire. Lui è l’unico a dare questa impressione di essere solido, pieno, completamente piano, può essere perfettamente lineare ma ha anche la plasticità per sposare le curve e lui è l’unico a sapere come giocare con la luce.
“Cette maison est une transparence, elle fait rentrer la mer en elle.”
“Questa casa è una trasparenza, ci riporta il mare.”
Henri Ciriani

Progetti che possono essere acquistati
2D
18 €
Come funziona il download?
Per scaricare i file dal sito Archweb.com esistono 4 tipologie di download, identificate da 4 colori differenti. Scopri gli abbonamenti
Gratuito
per tutti
Gratuito
per utenti Archweb
Abbonamento
per utenti Premium
Acquisto singolo
paga 1 e scarica 1