Blocchi CAD e Progetti

Case in linea

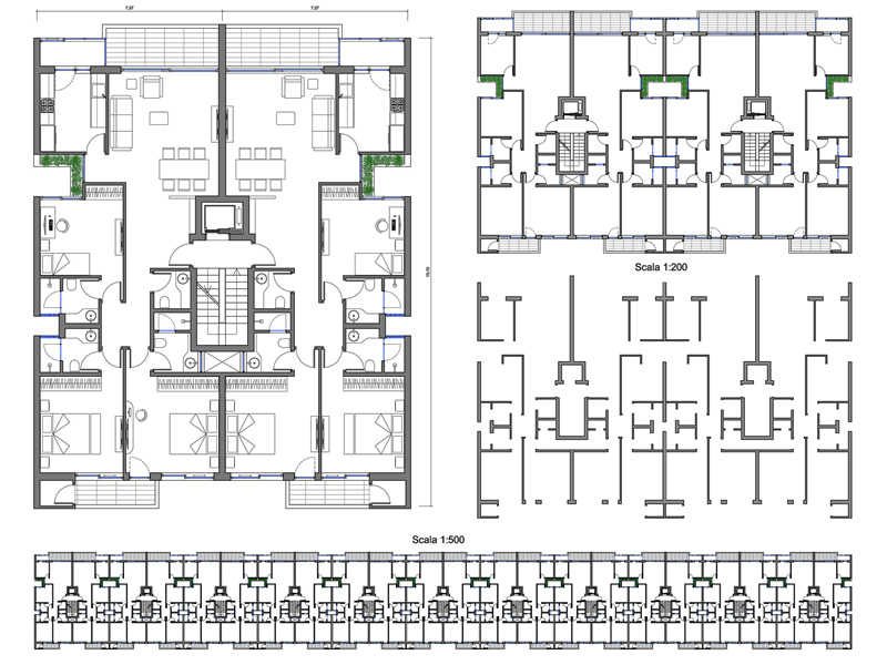
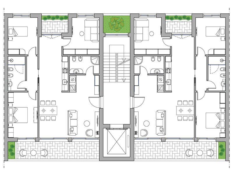
La casa in linea è una tipologia edilizia plurifamiliare costituita da un corpo scala che serve almeno due appartamenti per piano. Può anche essere conformata dall’aggregazione lineare di due o più corpi scala. Non vi è un numero di piani precostituito e non vi è alcuna limitazione sul numero massimo degli appartamenti per piano. (Wikipedia)

In questa categoria sono presenti file dwg utili alla progettazione: case in linea, progetti di case in linea, blocchi scala, soluzioni d’angolo. Disegni in scala 1:100.
Vasta scelta di disegni e progetti per ogni necessità del progettista.

Ordina per

articoli consigliati

Progettare per le famiglie

Progettare uno spazio family friendly, vuol dire progettare uno spazio adatto alle esigenze dell'intera famiglia. La progettazione familiare è un…

24 Maggio 2024

Il social housing

1. Lo spazio aperto condiviso: contenitore di idee, legami, valori Considerando fondamentale l’intervento dei progettisti in un ambiente che oggi soffre…

12 Marzo 2019

La cabina armadio

Affermatasi da qualche decennio come soluzione utile a mantenere l’ordine, la cabina armadio è oggi considerata elemento molto ambito, in…

11 Febbraio 2020

gallerie consigliate

Graniti

Marmi

Rosso Verona

Come funziona il download?

Per scaricare i file dal sito Archweb.com esistono 4 tipologie di download, identificate da 4 colori differenti. Scopri gli abbonamenti

Gratuito
per tutti

Gratuito
per utenti Archweb

Abbonamento
per utenti Premium

Acquisto singolo
paga 1 e scarica 1