Acquisto
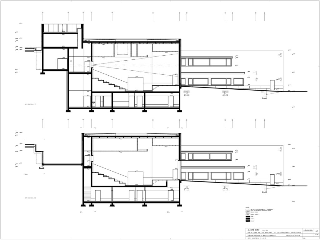
Complesso Parrocchiale a Marco de Canaveses
2D – Disegni in scala 1:100 (metri)
L’immagine di anteprima del progetto di questa architettura deriva direttamente dal nostro disegno dwg e rappresenta esattamente il contenuto del file dwg. Per visualizzare l’immagine in fullscreen, registrati e fai il login.
Il disegno è ben ordinato in layer e ottimizzato per la stampa in scala 1:100.
Il file .ctb per gli spessori di stampa è scaricabile da qui. Il settaggio degli spessori è standard per tutti i file di Archweb. Controllare sempre se il ctb è in linea con le proprie esigenze grafiche.
Tutti i disegni Archweb sono di ottima qualità grafica, disegnati da noi con attenzione e professionalità, probabilmente i migliori che potete trovare in rete. Rimaniamo a disposizione per qualsiasi richiesta di informazioni.
Potete avere i file cliccando sul pulsante “Scarica DWG”, scegliendo la modalità di pagamento preferita e versando il contributo di 18 euro.
Come funziona il download?
Per scaricare i file dal sito Archweb.com esistono 4 tipologie di download, identificate da 4 colori differenti. Scopri gli abbonamenti
Gratuito
per tutti
Gratuito
per utenti Archweb
Abbonamento
per utenti Premium
Acquisto singolo
paga 1 e scarica 1