Registrato

Spogliatoi – servizi C.B. 05

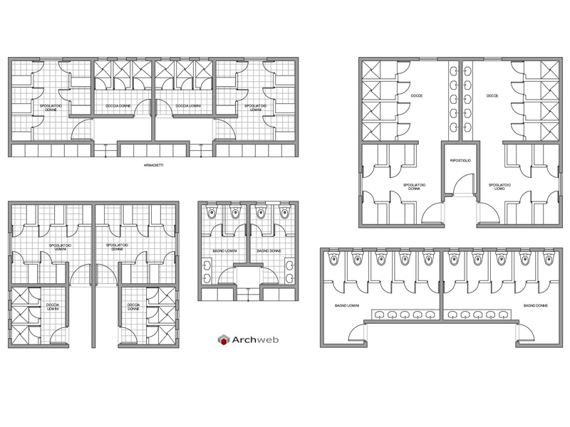
File che comprende 5 schemi progettuali di spogliatoi e servizi

File dwg in scala 1:100 (metri)

File che comprende 5 schemi progettuali di spogliatoi e servizi adattabili a centri benessere, sportivi, palestre.

Blocchi CAD consigliati

Spogliatoi – servizi C.B. 05

DWG

Spogliatoi – Servizi C.B. 03

DWG

Spogliatoi – servizi C.B. 02

DWG

Servizi uomo-donna

DWG

Spogliatoi – Servizi C.B. 07

DWG

Spogliatoi – servizi C.B. 08

DWG

Spogliatoi – servizi C.B. 06

DWG

Spogliatoi – servizi C.B. 09

DWG

Come funziona il download?

Per scaricare i file dal sito Archweb.com esistono 4 tipologie di download, identificate da 4 colori differenti. Scopri gli abbonamenti

Gratuito
per tutti

Gratuito
per utenti Archweb

Abbonamento
per utenti Premium

Acquisto singolo
paga 1 e scarica 1