Registrato

Zona notte 12

File dwg in scala 1:100 (metri)

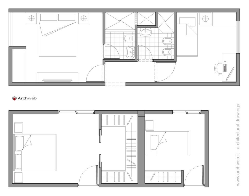
Schema progettuale per una zona notte con due camere da letto, matrimoniale con bagno interno e singola con bagno di pertinenza.
Nel file è presente anche una camera da letto con cabina armadio e adiacente una cameretta singola.

Nel file dwg sono presenti le piante di due distinte zone notte. Una pianta è composta da una camera da letto matrimoniale di dimensioni interne 4,43 x 3,43 metri e una camera da letto singola di 11 metri quadrati separate al centro da due bagni. Un bagno ha l’accesso diretto dalla camera matrimoniale, presenta due piatti doccia separati da una porta in vetro ma è privo di finestra. L’altro bagno, più piccolo, ha l’apertura sul disimpegno creando cosi un servizio, non solo per la camera singola, ma anche per eventuali altre stanze.

La seconda pianta raffigura una camera da letto con grande cabina armadio completa di arredi su misura ed una camera singola completa di letto singola ed armadio incassato.

Blocchi CAD consigliati

Zona notte dwg 19

DWG

Camera da letto e bagno 05

DWG

Zona notte 10

DWG

Zona notte 14

DWG

Zona notte dwg 41

DWG

Zona notte dwg 36

DWG

Zona notte 15

DWG

Zona notte dwg 27

DWG

Come funziona il download?

Per scaricare i file dal sito Archweb.com esistono 4 tipologie di download, identificate da 4 colori differenti. Scopri gli abbonamenti

Gratuito
per tutti

Gratuito
per utenti Archweb

Abbonamento
per utenti Premium

Acquisto singolo
paga 1 e scarica 1