Registrato

Zona notte 06

File dwg in scala 1:100 (metri)

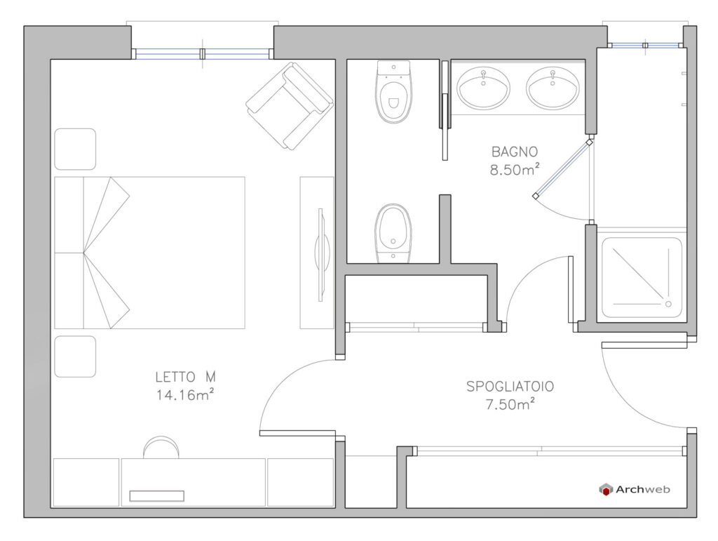
Schema progettuale con camera da letto matrimoniale con spazio spogliatoio-armadi e bagno interno con doccia.
Pianta in scala 1:100

La pianta rappresenta una camera da letto padronale di 14,16 metri quadrati completa di letto matrimoniale, comodini, poltrona, mobile tv e scrivania servita da un comodo spogliatoio di 7,50 metri quadrati, provvisto di armadi a parete con ante scorrevoli e da un grande bagno di 8,50 metri quadrati completo di un confortevole box doccia finestrato e doppio lavello separato dai sanitari mediante una porta a scrigno.

Blocchi CAD consigliati

Zona notte 26

DWG

Zona notte dwg 32

DWG

Zona notte dwg 29

DWG

Zona notte dwg 28

DWG

Camere da letto e bagno 01

DWG

Zona notte dwg 20

DWG

Camera da letto e bagno 04

DWG

Zona notte dwg 17

DWG

Come funziona il download?

Per scaricare i file dal sito Archweb.com esistono 4 tipologie di download, identificate da 4 colori differenti. Scopri gli abbonamenti

Gratuito
per tutti

Gratuito
per utenti Archweb

Abbonamento
per utenti Premium

Acquisto singolo
paga 1 e scarica 1