Gratuito

Zona notte 09

File dwg in scala 1:100 (metri)

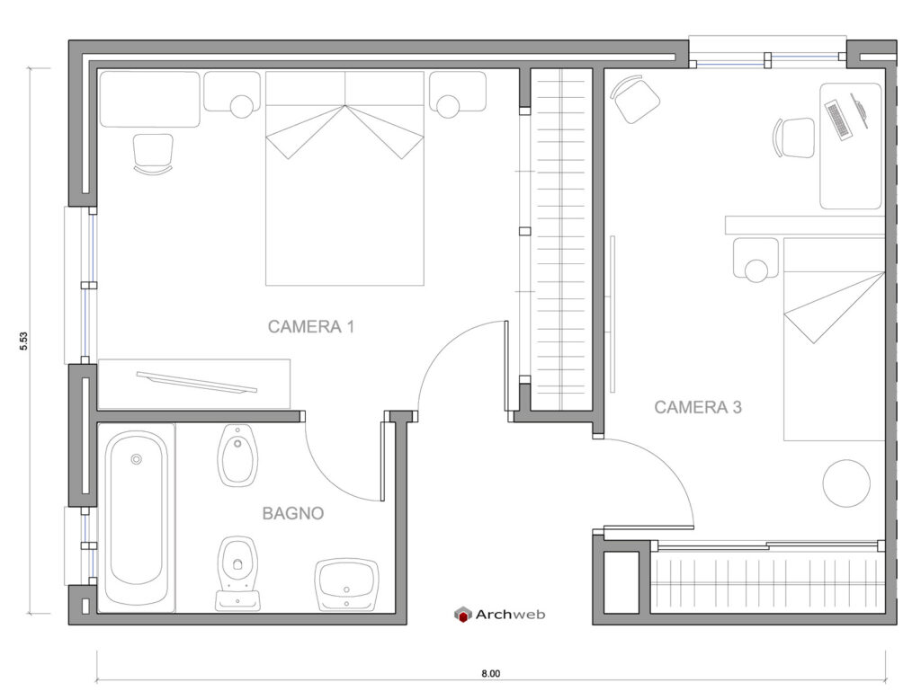
Zona notte con camera da letto matrimoniale e bagno interno, cameretta singola, pianta in scala 1:100

Un ampio disimpegno collega la camera da letto matrimoniale alla camera da letto singola. La camera da letto matrimoniale ha dimensioni 5,03 x 3,48 metri, è dotata di un grande armadio a muro con ante a battenti, letto a due piazze con comodini, una scrivania completa di seduta, una postazione con tv ed un grande bagno completo di vasca sotto finestra, doppi sanitari e lavello. La camera da letto singola presenta un armadio con ante scorrevoli ed un letto singolo separato dalla scrivania da un comodo mobile libreria posto come testata del letto. Entrambe le camere sono provviste di ampie portefinestre.

Blocchi CAD consigliati

Zona notte dwg 27

DWG

Zona notte 15

DWG

Zona notte 03

DWG

Zona notte dwg 40

DWG

Zona notte dwg 31

DWG

Zona notte 14

DWG

Zona notte dwg 21

DWG

Zona notte dwg 38

DWG

Come funziona il download?

Per scaricare i file dal sito Archweb.com esistono 4 tipologie di download, identificate da 4 colori differenti. Scopri gli abbonamenti

Gratuito
per tutti

Gratuito
per utenti Archweb

Abbonamento
per utenti Premium

Acquisto singolo
paga 1 e scarica 1