Gallerie

Le torri residenziali Solaria, Aria e Solea

Eleganza verticale nel cuore di Porta Nuova a Milano

Nel cuore di Porta Nuova, uno dei più ambiziosi progetti di rigenerazione urbana d’Europa, si innalzano le torri Solaria, Aria e Solea. Queste torri sono simboli di una Milano che guarda al futuro senza rinunciare alla qualità abitativa e all’eleganza architettonica.
Realizzate tra il 2011 e il 2014 su progetto di Arquitectonica in collaborazione con Citterio-Viel & Partners, queste tre torri rappresentano un equilibrio raffinato. Si bilanciano tra design contemporaneo, comfort residenziale e dialogo con il paesaggio urbano.

La torre Solaria

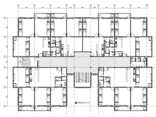
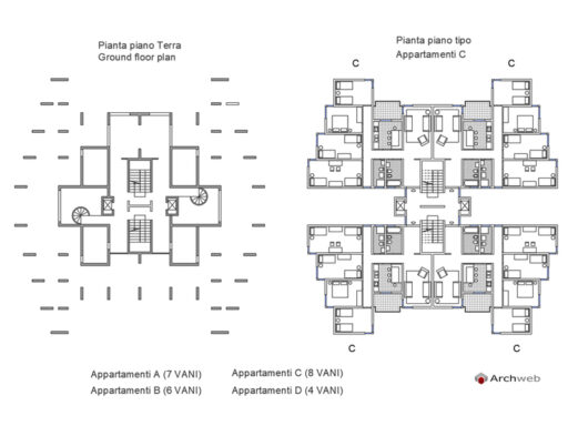
Con i suoi 143 metri d’altezza distribuiti su 37 piani, è il grattacielo residenziale più alto d’Italia.
Linee leggere, facciate vetrate e ampie logge panoramiche caratterizzano un’architettura che riflette la luce. Questa cambia aspetto a seconda delle ore del giorno, inserendosi in modo dinamico nello skyline milanese.
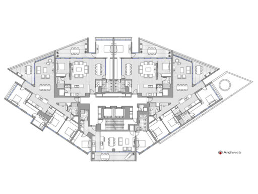
La torre accoglie 102 residenze, tra cui esclusivi duplex e triplex. Queste sono disposti su due o tre livelli e progettati per valorizzare al massimo la luce naturale. Ogni abitazione è pensata come un osservatorio privilegiato sulla città, grazie alle ampie superfici vetrate che ampliano la percezione dello spazio e mettono in dialogo interno ed esterno.

Le terrazze, concepite come un’estensione diretta degli ambienti interni, si sviluppano secondo un ritmo irregolare e dinamico. Questa configurazione genera un profilo architettonico vibrante e mai ripetitivo.
I parapetti in vetro acidato, con trasparenza graduale, contribuiscono a creare giochi di luce e riflessi. Questi mutano nel corso della giornata, restituendo alla torre un’immagine sempre diversa e cangiante.

Torre Aria e Solea

Accanto alla torre Solaria, la Torre Aria (alta circa 80 metri per 17 piani) e la Torre Solea (alta 69 metri per 15 piani) completano il complesso. Ogni torre ha un linguaggio coerente ma non ripetitivo. Offrono una scala più intima e un rapporto diretto con gli spazi verdi e pedonali di Porta Nuova.
La distribuzione sfalsata dei volumi, i tagli verticali delle facciate e l’uso sapiente dei materiali — vetro, acciaio e superfici ceramiche — creano un gioco di trasparenze e riflessi. Questo dà vita a un paesaggio architettonico armonico e luminoso.

Gli interni, firmati anch’essi da Antonio Citterio Patricia Viel, sono pensati per un benessere abitativo di alto livello. La disposizione delle residenze privilegia privacy, silenzio e vista.
Il complesso include anche spazi comuni dedicati ai residenti: fitness center, piscina e area lounge.
Questi spazi rafforzano il senso di comunità all’interno di una delle zone più dinamiche e internazionali di Milano.

Le torri Solaria, Aria e Solea non sono solo un segno architettonico nel nuovo skyline milanese. Rappresentano una precisa idea di abitare urbano contemporaneo. Qui, estetica, funzionalità e sostenibilità si fondono per offrire un modello di vita metropolitana di alta qualità.