Gallerie

Portoni industriali

Ingressi per depositi per mezzi di trasporto, fabbriche, logistica

Album 1 - Portoni a libro per STIB, Società trasporti di Bruxelles

Le foto riguardano l'intervento, progettato dal dipartimento tecnico Kopron, di 27 portoni a libro modello KPL-SG con impacco laterale delle due ante. I portoni a libro sono dotati di guida superiore, composti da pannelli dello spessore di 52 mm, con telaio perimetrale in acciaio zincato, coibentati e rivestititi da una resistente lamiera liscia preverniciata, disponibile in tante colorazioni.
Porte composte tutte da 4 ante (2+2) provviste di oblò su ogni battente.
Le dimensioni delle chiusure variano dai 4.100 mt. ai 4.880 mt. di larghezza e tutte altezza 5.570 mt., la motorizzazione installata consente con praticità di aprire e chiudere i portoni con telecomando o pulsantiera.

Album 2 - Varie fotografie disponibili su Depositphotos.com

Porte sezionali utilizzate principalmente per garage, capannoni industriali, magazzini, concessionarie, officine e centri logistici.

Vedi i disegni dwg...>>

disegni dwg correlati

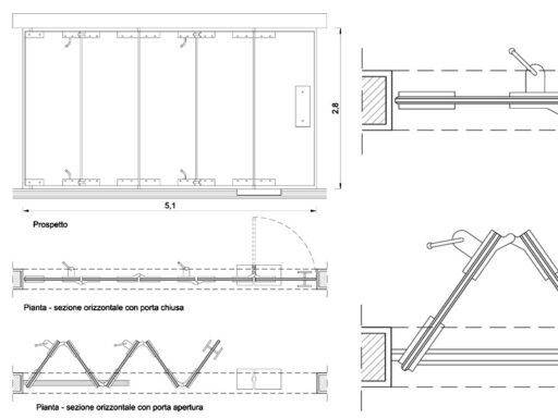
Portone industriale a libro

DWG

Porta a fisarmonica 01

DWG

Porta fisarmonica 02

DWG