Rose Seidler House
Harry Seidler - Rose Seidler House, 1950-1955
Harry Seidler - Rose Seidler House, 1950-1955
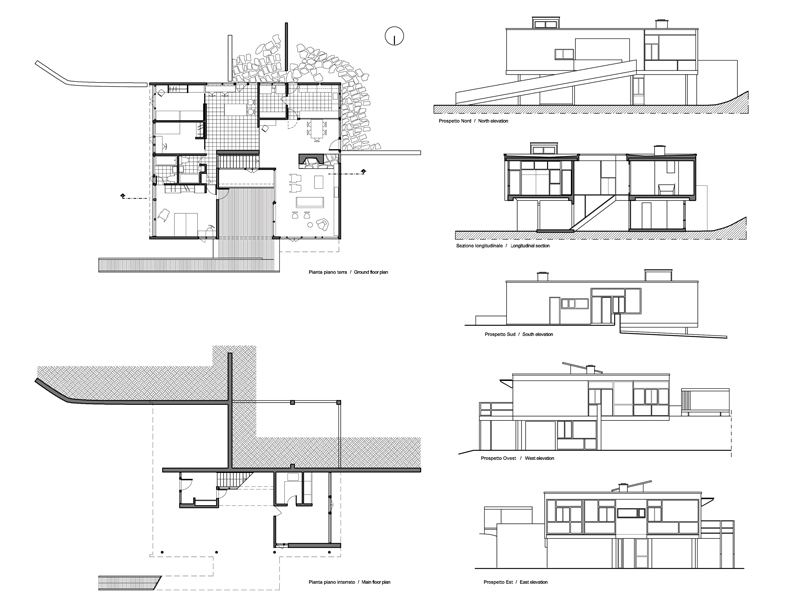
Rose Seidler House è una ex residenza storica e ora ospita un museo situato a 69-71 Clissold Road nel sobborgo di Wahroonga a Sydney nell'area del governo locale del Consiglio del Ku-ring-gai del New South Wales , Australia.
La casa è stata progettata da Harry Seidler per entrambi i genitori, Rose e Max Seidler, tuttavia, dal momento che Rose Seidler era la persona che prese tutte le principali decisioni, la casa prende il nome solo da lei.......Vedi la descrizione completa e i disegni dwg del progetto...>>
L'autore delle fotografie è: Christine Wehrmeier
https://www.christinewehrmeier.com/
Rose Seidler House
Autore
Category Architetture Contemporanee