Alvaro Siza Vieira – Biografia

Equilibrio e misura sono le doti di questo architetto. Alvaro Siza Vieira si colloca tra le più significative espressioni del panorama architettonico internazionale contemporaneo.

Alvaro Siza Vieira - Biografia
Archweb logo

Articolo di

Categoria

Per non dimenticare

Pubblicato il

08 Maggio 2019

Alvaro Siza Vieira si colloca tra le più significative espressioni del panorama architettonico internazionale contemporaneo: architetto portoghese tra i più famosi al mondo, Siza annovera infatti premi e riconoscimenti importantissimi quali la medaglia d’oro della Fondazione Alvar Aalto, il Pritzker Prize e il Praemium Imperiale, oltre a diverse lauree ad honorem frutto di una lunga e fortunata carriera. Oltre all’attività professionale di progettista svolta presso lo studio di Porto, la città in cui si è laureato nel 1955, Siza ha insegnato presso diverse università, a Porto, negli Stati Uniti, in Svizzera e in Sud America, ha partecipato ad importanti concorsi internazionali ad invito e le sue opere, pubblicate sulle principali riviste di settore, sono state oggetto di rassegne in tutto il mondo.

La sua formazione si costruisce, dopo la laurea, grazie al lavoro svolto negli anni Cinquanta accanto ad un maestro dalla forte personalità, Fernando Távora, figura chiave nella diffusione della conoscenza dell’architettura contemporanea europea: dalla raffinata cultura della sua esperienza professionale apprende un metodo di lavoro e modella il proprio modo di fare architettura, sempre regolato da un bilanciato senso di equilibrio e di misura. Questi caratteri sono già riscontrabili nelle prime realizzazioni per Porto, nelle quattro case unifamiliari per Matosinhos, suo paese natale, e nei tre interventi realizzati a Leça de Palmeira tra gli anni Cinquanta e Sessanta, il ristorante Boa Nova, un centro sportivo e una piscina in riva al mare. Negli anni Settanta il lessico compositivo si evolve in edifici come casa Beires a Povoa de Varzim, dove un linguaggio scabro vicino al brutalismo lecorbuseriano si confronta con un’attenzione topografica tipica degli approcci insediativi di Alvar Aalto.  

Si ispirò anche al neorealismo italiano 
Con il processo di trasformazione democratica del Portogallo a partire dalla metà degli anni Settanta, il lavoro di Siza compie una scelta di campo, apportando un contributo decisivo alle sperimentazioni compiute nel tentativo di risolvere il drammatico problema dell’abitazione economica popolare nell’ambito delle attività promosse dal programma SAAL, “Servizio di appoggio mobile locale”. Affronta il progetto in scala urbana, determinandolo sul confronto e sulle relazioni tra il sito e i suoi abitanti, analizzando il continuo processo di trasformazione e modifica, e non assoggettando le opere al contesto, ma accogliendo del contesto le sfide, le possibilità nascoste e generate dall’opera del tempo, particolarmente visibili nelle stratificate sedimentazioni delle città.

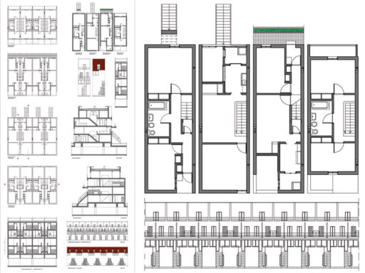
I primi progetti, rimasti incompiuti, sono per Porto, i complessi residenziali di Bouça e di São Victor, dove il tema è la reinterpretazione in chiave contestuale dell’astratto tipo della casa a schiera. Tale atteggiamento anticipa, anche se con riferimenti diversi, il progetto di urbanizzazione per il quartiere residenziale di Malagueira ad Évora del 1977, prova della raggiunta maturità dell’autore e certamente una tra le sue opere più felici, rinnovatrice con accenti originali della nobile tradizione dell’architettura europea del 900.

Questi quartieri residenziali si richiamano alle più significative esperienze dell’architettura di Germania, Austria, Svizzera e Olanda, di autori come Oud, Stam, May e Taut e dichiarano l’influenza che su Siza ha avuto il neorealismo italiano: ne condivide tutti i valori figli della povertà, e nei progetti per situazioni disagiate e di ambienti sociali compromessi sostiene l’importanza della modestia con cui affrontare ogni occasione progettuale, convinto che in architettura non vi siano temi migliori o peggiori ma solo i modi, positivi o negativi con cui gli argomenti vengono trattati.Per Berlino elabora negli anni Settanta alcuni progetti per il risanamento del quartiere di Kreuzberg, intervento che lo porta al progetto che gli conferisce fama internazionale, la Schlesisches Tor degli anni 1980 e 1983, prima opera che completata fuori dal Portogallo, paradigmatica ed esemplare nella definizione dell’architettura di Siza come “arte del sottrarre”.

Realizza opere in tutto il mondo
Sempre a partire dal disegno e dallo schizzo, elemento essenziale e principale strumento di studio, di ricerca e comunicazione, l’architettura di Siza assume la semplicità come propria ricchezza, mescolando rigore ed eclettismo, ragione ad fantasia, parsimonia espressiva e scatti magniloquenti. Genericamente definito come minimalista, in questo vero seguace di Adolf Loos, egli difende l’economia ed il rispetto dei mezzi espressivi, evitando gli sprechi e sottolineando la distinzione tra decorazione e ornamento.

I costanti rimandi e i dialoghi con l’architettura contemporanea, da Alvar Aalto a Le Corbusier, da Wright a Oud e a Barragán, ne rendono l’opera sempre sfaccettata ed originale, non riducibile ad un solo riferimento, ma espressione di una modernità fondata sul tema della mescolanza dei modelli.
Dopo l’esperienza berlinese Siza riceve incarichi professionali importantissimi, realizza opere in Portogallo, in Spagna, Olanda, Germania e Italia, e fama e notorietà ne fanno uno degli architetti più ricercati. Tra le numerose realizzazioni e gli infiniti progetti, sono particolarmente noti il Centro Galego di Arte Contemporanea a Santiago de Compostela, la Facoltà di Architettura e il Museo della Fondazione Serralves a Porto, la biblioteca dell’università di Aveiro, il capannone dello stabilimento Vitra a Weil am Rehin, il Rettorato dell’Università di Alicante, il Centro meteorologico nel villaggio olimpico di Barcellona, il Padiglione portoghese all’Expo ’98 di Lisbona, i due insediamenti a scala urbana di edilizia convenzionata per l’Aja, la chiesa a Marco de Cavanezes, il concorso vinto per Venezia per il recupero dell’area di Campo di Marte alla Giudecca nel 1985 e gli edifici scolastici in Portogallo, l’asilo João de Deus a Penafiel e l’Istituto di Educazione Superiore a Setubal.

A cura di Lucia Vittoria Olgiati
Fonte: http://www.deagostini.it/omnia2001

architetture in dwg di alvaro siza vieria

Alloggi e Uffici all’Aja

Biblioteca di Aveiro

Biblioteca municipale di Viana do Castelo

Casa Alcino Cardoso

Casa Avelino Duarte

Case sociali a Bouça

Centro Galego de Arte Contemporanea

Complesso Parrocchiale a Marco de Canaveses

Fondazione Iberê Camargo

Mimesis Museum

Padiglione Carlos Ramos

Residenze a Malagueira