Gallerie

Le Ville di Porta Nuova a Milano

Residenze urbane tra privacy, verde e architettura contemporanea

Nel cuore di uno dei quartieri più iconici della Milano contemporanea, Porta Nuova, si nasconde un progetto residenziale che molti visitatori nemmeno notano al primo sguardo. Tra le torri vetrate, i boulevard pedonali e il grande parco pubblico, emergono infatti le Ville di Porta Nuova, un insieme di sei edifici che reinterpretano in chiave attuale il modello della “villa urbana” milanese.

Un intervento discreto, quasi mimetico, che però rappresenta uno dei tasselli più interessanti della rigenerazione dell’intero distretto.

Un nuovo modo di vivere la città

Le Ville si inseriscono nell’ambito del grande ridisegno di Porta Nuova, un’area che ha trasformato ex spazi industriali in un quartiere denso di servizi, verde, connessioni pedonali e qualità architettonica.
Qui l’idea di abitare non passa più solo attraverso il “grattacielo-residenza”, ma si apre a tipologie più intime, più vicine alla scala del vivere quotidiano.

Le Ville di Porta Nuova portano la firma di M2P Associati, studio milanese attivo da anni nella progettazione architettonica e urbana con un approccio molto attento al dialogo tra forma, funzione e qualità dell’abitare. Il loro metodo di lavoro si distingue per una ricerca costante dell’equilibrio: linee pulite, materiali scelti con cura e una progettazione che non punta mai all’effetto scenografico fine a sé stesso, ma alla costruzione di spazi che migliorano la vita quotidiana.
Nel caso delle Ville, M2P interpreta la tradizione delle case milanesi con giardino trasformandola in un prodotto architettonico contemporaneo e misurato. L’attenzione ai dettagli, alla luce e alla relazione con il verde è uno dei tratti più riconoscibili del loro modo di progettare, che qui trova un’espressione particolarmente raffinata.

Architettura e spazi: eleganza nella misura

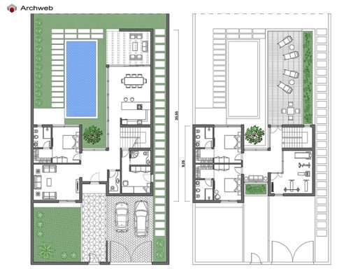
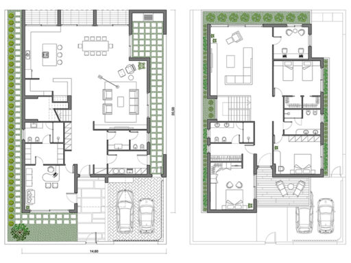
Le residenze si sviluppano su dimensioni contenute ma generose nella percezione, grazie a tre elementi chiave:

1. Affacci multipli
Gli ambienti interni si aprono su più lati, creando una relazione fluida con l’esterno e massimizzando la luce naturale. Un concetto che richiama la pianta libera moderna, applicata però a una tipologia residenziale privata.

2. Terrazze e giardini pensili
Ogni villa gode di spazi aperti privati: terrazze profonde, logge, piccoli giardini rialzati.
È una scelta precisa: portare la dimensione del verde a pochi passi dal soggiorno, anche nel cuore di una grande metropoli.

3. Materiali e linguaggio
Facciate dai toni neutri, rivestimenti materici, aperture generose ma mai esibite.
L’estetica è sobria e sofisticata, perfettamente coerente con il contesto di Porta Nuova: un equilibrio tra residenze di pregio e architettura di grande scala, senza competere con le torri circostanti ma creando un contrappunto più umano.

Abitare su misura

Uno dei punti più caratteristici del progetto è la totale personalizzazione degli interni: le superfici — circa 8.500 mq complessivi — sono state pensate per permettere agli abitanti di modellare gli spazi sulle proprie esigenze.

Questa flessibilità, unita alla privacy garantita dalla disposizione delle unità, rende le ville quasi una “micro oasi” nel pieno centro cittadino.

Un tassello fondamentale nel mosaico di Porta Nuova

Le Ville di Porta Nuova non sono un elemento isolato, ma dialogano con:

  • il Bosco Verticale, con cui condividono l’idea di vivere il verde in verticale;
  • il parco Biblioteca degli Alberi, che diventa una sorta di giardino pubblico “esteso” a pochi passi dagli ingressi;
  • i percorsi pedonali e le piazze del quartiere, che definiscono un sistema continuo di spazi aperti.

In questo senso, le ville rappresentano un livello intermedio tra la scala metropolitana delle torri e la dimensione più intima delle abitazioni private.

La galleria fotografica 4K

Le immagini della galleria fotografica mostrano:

  • le facciate e i volumi essenziali delle residenze;
  • le terrazze e i giardini pensili;
  • i rapporti con il contesto circostante (BAM, torri, spazi urbani);
  • dettagli materici e costruttivi.

La qualità 4K permette di apprezzare la cura progettuale, le texture dei materiali e l’integrazione delle residenze con il paesaggio architettonico di Porta Nuova.


Fotografie scattate a giugno 2025

altre architetture del quartiere porta nuova

Le torri residenziali Solaria, Aria e Solea

Bosco Verticale

De Castillia 23 – “Il Rasoio”, Milano

Torre Unipol a Milano

Piazza Gae Aulenti a Milano

Torre UniCredit a Milano