Registrato

Camera letto bagno 5

File dwg in scala 1:100 (metri)

Camera letto bagno 5
 

Blocchi CAD consigliati

Misure camere da letto

DWG

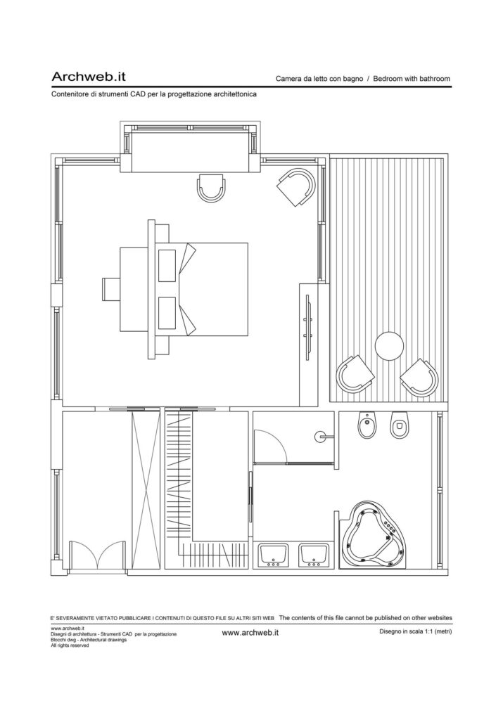
Camera da letto-bagno 13

DWG

Camera da letto 03

DWG

Camera letto aggiuntiva 1B

DWG

Camera da letto prospetto

DWG

Cameretta autocad 01

DWG

Cameretta autocad 08

DWG

Camera da letto-bagno 14

DWG

Come funziona il download?

Per scaricare i file dal sito Archweb.com esistono 4 tipologie di download, identificate da 4 colori differenti. Scopri gli abbonamenti

Gratuito
per tutti

Gratuito
per utenti Archweb

Abbonamento
per utenti Premium

Acquisto singolo
paga 1 e scarica 1