Abbonamento

Case a schiera 54

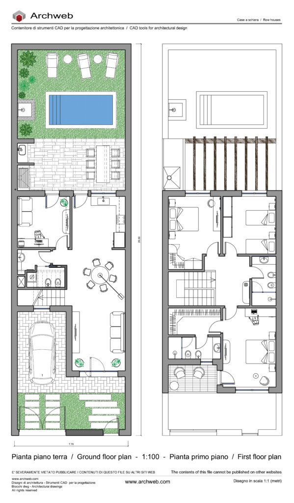
Schema progettuale dwg in scala 1:100 (metri)

Schema progettuale di una casa a schiera che si sviluppa su due livelli.

Il piano terra si presenta come un grande ambiente giorno, uno spazio fluido in cui living, zona pranzo e cucina dialogano senza interruzioni. L’esterno diventa la naturale prosecuzione di questo spazio: un giardino che accoglie piscina, zone verdi e un’area conviviale collocata sotto un pergolato, così da creare un vero ambiente domestico all’aperto, fruibile in ogni stagione. Il livello è completato da uno studio, utilizzabile anche come camera per gli ospiti, e da un bagno di servizio ricavato nel sottoscala.

Il piano superiore accoglie la zona notte. Due camere da letto condividono un bagno funzionale e ben distribuito, mentre la terza camera si configura come una piccola suite, dotata di bagno privato, cabina armadio e una loggia.


L’immagine di anteprima deriva direttamente dal nostro disegno dwg e rappresenta esattamente il contenuto del file. Per visualizzare l’immagine in fullscreen, registrati e fai il login.

Il disegno è ben ordinato in layer e ottimizzato per la stampa in scala 1:100. 
Il file .ctb per gli spessori di stampa è scaricabile da qui. Il settaggio degli spessori è standard per tutti i file di Archweb. Controllare sempre se il ctb è in linea con le proprie esigenze grafiche.

Tutti i disegni Archweb sono di ottima qualità grafica, disegnati da noi con attenzione e professionalità, probabilmente i migliori che puoi trovare in rete. Rimaniamo a disposizione per qualsiasi richiesta di informazioni.
Questo file è disponibile per gli utenti abbonati cliccando sul pulsante “Scarica DWG”

Blocchi CAD consigliati

Case a schiera 5

DWG

Case a schiera Rossi a Genzano di Roma

DWG

Case a schiera 26

DWG

Case a schiera con patio 19

DWG

Case a schiera 7

DWG

Case a schiera 20

DWG

Progetto villini schiera

DWG

Case a schiera 52

DWG

Come funziona il download?

Per scaricare i file dal sito Archweb.com esistono 4 tipologie di download, identificate da 4 colori differenti. Scopri gli abbonamenti

Gratuito
per tutti

Gratuito
per utenti Archweb

Abbonamento
per utenti Premium

Acquisto singolo
paga 1 e scarica 1