Abbonamento

Schema ufficio 32

Pianta in scala 1:100 (metri)

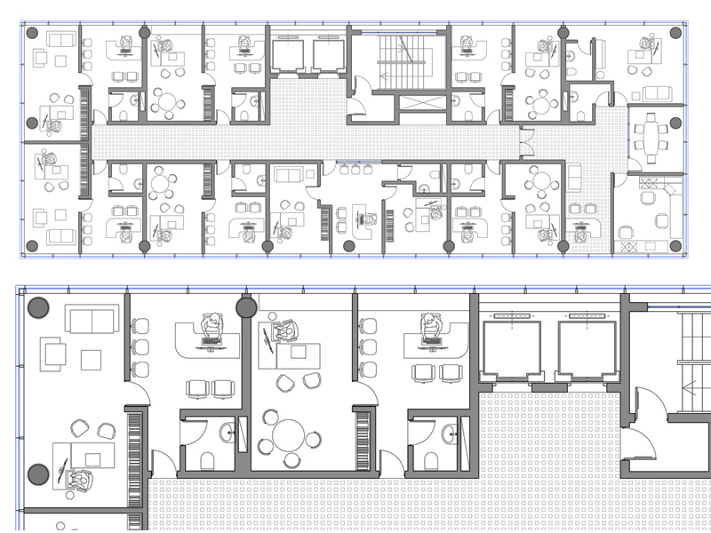
Edificio per uffici – Schema distributivo

Lo schema progettuale presenta una distribuzione planimetrica di tipo lineare e bilaterale, con un corridoio centrale che funge da asse distributivo principale. Su entrambi i lati del corridoio si sviluppano uffici indipendenti e spazi di servizio, organizzati in modo modulare e facilmente adattabili a diverse esigenze lavorative.

Le unità operative sono di dimensioni variabili: si alternano uffici singoli o doppi, sale riunioni e aree di attesa. Ogni ambiente è arredato con postazioni ergonomiche, tavoli riunione e arredi di supporto, ottimizzando l’uso dello spazio.

Al centro del piano è collocato il nucleo tecnico con vano scala e ascensori per garantire una distribuzione funzionale.
Nelle zone terminali del corridoio si trovano ambienti direzionali o sale riunioni di maggior rappresentanza, facilmente accessibili ma separate dalle aree operative per garantire privacy e tranquillità.

Blocchi CAD consigliati

Schema ufficio 10

DWG

Schema ufficio 13

DWG

Schema ufficio 20

DWG

Schema ufficio 04

DWG

Schema ufficio 05

DWG

Schema ufficio 12

DWG

Schema ufficio 26

DWG

Schema ufficio 03

DWG

Come funziona il download?

Per scaricare i file dal sito Archweb.com esistono 4 tipologie di download, identificate da 4 colori differenti. Scopri gli abbonamenti

Gratuito
per tutti

Gratuito
per utenti Archweb

Abbonamento
per utenti Premium

Acquisto singolo
paga 1 e scarica 1