Abbonamento

Schema ufficio 33

File dwg in scala 1:100 (metri)

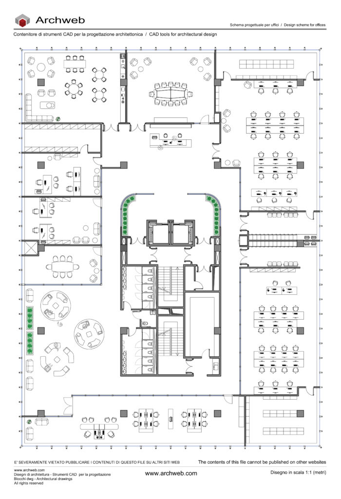
La pianta rappresenta il piano tipo di un edificio per uffici organizzato secondo uno schema funzionale e razionale, in cui la distribuzione degli spazi ruota attorno a un nucleo centrale.

Al centro della pianta si trova il blocco dei servizi e dei collegamenti verticali, configurato come un nucleo compatto che organizza l’intero sistema distributivo. Questo volume centrale ospita le scale di emergenza, i servizi igienici, gli spazi tecnici e i cavedi destinati al passaggio degli impianti. La sua posizione baricentrica consente di ridurre le distanze di percorrenza, migliorare l’efficienza delle vie di esodo e distribuire in modo equilibrato le reti impiantistiche verso tutte le aree operative del piano.

Attorno al nucleo si sviluppa un anello continuo di spazi per uffici e funzioni collettive.
Sul lato destro della pianta sono presenti ampie aree operative organizzate con postazioni di lavoro in open space, disposte in file regolari per ottimizzare la densità e la flessibilità dell’ambiente.
Sul lato sinistro sono collocati ambienti più riservati, tra cui uffici chiusi, sale riunioni e spazi direzionali.
Inoltre si trovano aree comuni e zone relax, arredate con sedute informali e tavoli per incontri brevi o pause.

L’involucro esterno è costituito da una facciata continua in curtain wall, fissata a montanti in acciaio ancorati ai solai.


L’immagine di anteprima deriva direttamente dal nostro disegno dwg e rappresenta esattamente il contenuto del file dwg. Per visualizzare l’immagine in fullscreen, registrati e fai il login.

Il disegno è ben ordinato in layer e ottimizzato per la stampa in scala 1:100. 
Il file .ctb per gli spessori di stampa è scaricabile da qui. Il settaggio degli spessori è standard per tutti i file di Archweb. Controllare sempre se il ctb è in linea con le proprie esigenze grafiche.

Tutti i disegni Archweb sono di ottima qualità grafica, disegnati da noi con attenzione e professionalità, probabilmente i migliori che potete trovare in rete. Rimaniamo a disposizione per qualsiasi richiesta di informazioni.
Questo file è disponibile per gli utenti abbonati cliccando sul pulsante “Scarica DWG”

Blocchi CAD consigliati

Schema ufficio 17

DWG

Schema ufficio 29

DWG

Schema ufficio 26

DWG

Schema ufficio 11

DWG

Schema ufficio 21

DWG

Schema ufficio 02

DWG

Schema ufficio 27

DWG

Schema ufficio 12

DWG

Come funziona il download?

Per scaricare i file dal sito Archweb.com esistono 4 tipologie di download, identificate da 4 colori differenti. Scopri gli abbonamenti

Gratuito
per tutti

Gratuito
per utenti Archweb

Abbonamento
per utenti Premium

Acquisto singolo
paga 1 e scarica 1