Bagno piccolo: misure minime
Scopri le misure minime per un bagno piccolo e accessibile: normative, soluzioni salvaspazio e idee di design per ambienti funzionali.
Il bagno è uno degli ambienti più importanti della casa, ma spesso è anche quello che deve convivere con spazi ridotti. Nelle abitazioni moderne, dove ogni metro quadrato è prezioso, riuscire a progettare un bagno piccolo ma funzionale è una vera sfida che coinvolge competenze tecniche, conoscenza delle normative e senso estetico.
In questo articolo analizziamo in modo dettagliato le misure minime per un bagno piccolo, le norme edilizie e igienico-sanitarie da rispettare, le soluzioni di arredo intelligente per ottimizzare gli spazi e le dimensioni necessarie per un bagno accessibile a persone con disabilità.
Bagno piccolo: misure minime e riferimenti normativi
La progettazione di un bagno non può prescindere dalle normative vigenti che stabiliscono dimensioni minime, altezze, rapporti aeroilluminanti e distanze tra i sanitari. Queste regole servono a garantire igiene, comfort e sicurezza d’uso.
In Italia, le principali fonti normative di riferimento sono:
- D.M. 5 luglio 1975, recante “Modificazioni alle istruzioni ministeriali 20 giugno 1896 relativamente all’altezza minima ed ai requisiti igienico-sanitari principali dei locali d’abitazione”;
- Regolamenti edilizi comunali, che possono introdurre specifiche locali;
- Norme UNI (ad esempio UNI 9182 per l’impiantistica idrosanitaria e UNI 10779 per la sicurezza antincendio);
- L. 13/1989 e D.M. 236/1989, fondamentale per l’accessibilità degli edifici e l’adattabilità degli spazi ai disabili.
Vediamo nel dettaglio le principali prescrizioni relative ai bagni di abitazioni private.
Superficie minima e altezza
Il D.M. 5 luglio 1975 e le sue modifiche successive, come il D.L. 69/2024, stabilisce che:
- l’altezza minima interna del bagno deve essere di 2,40 m;
- ogni locale deve avere aerazione naturale tramite finestra apribile oppure, se non possibile, ventilazione meccanica controllata (VMC);
- non viene imposta una superficie minima, ma la pratica progettuale e le norme comunali definiscono standard minimi.
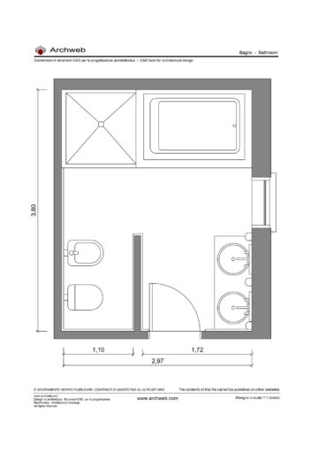
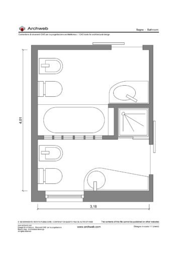
In molti regolamenti edilizi locali, si considera adeguato un bagno con una superficie minima di 3,5–4 m² per un bagno completo (wc, lavabo, bidet, doccia/vasca).
Un secondo bagno o bagno di servizio può avere anche superfici inferiori (2-3 m²), purché garantisca l’uso comodo dei sanitari e la corretta aerazione.
Dimensioni minime dei sanitari e distanze funzionali
In un bagno piccolo, la disposizione dei sanitari è fondamentale per garantire la fruibilità. Le norme tecniche e le linee guida ergonomiche indicano distanze minime per l’uso confortevole dei vari elementi.
Distanze minime raccomandate
Ecco i valori mediamente accettati:
| Elemento | Distanza minima frontale | Distanza laterale da pareti o altri elementi |
|---|---|---|
| WC | 55-60 cm | 15-20 cm |
| Bidet | 55-60 cm | 10-20 cm |
| Lavabo | 55-60 cm | 5cm (s/ mobile) – 20cm (c/ mobile) |
| Doccia (piatto) | 70×70 cm (minimo) – 80×80 cm consigliato | — |
| Vasca da bagno | 70 cm di passaggio libero frontale | — |
Per un uso confortevole e non claustrofobico, è preferibile mantenere uno spazio libero di almeno 100×100 cm davanti all’area doccia o al lavabo principale.

Soluzioni per ottimizzare gli spazi
Nei bagni di piccole dimensioni (ad esempio 1,2 x 2,0 m, cioè 2,4 m²), la scelta di sanitari compatti e arredi su misura è decisiva.
Alcune soluzioni efficaci includono:
- Sanitari sospesi con profondità ridotta (45–50 cm invece dei classici 55–60 cm);
- Lavabi angolari o da appoggio su mobile contenitore per sfruttare lo spazio sottostante;
- Docce a filo pavimento con chiusure in vetro trasparente che ampliano visivamente lo spazio;
- Mobili su misura o pensili sospesi per evitare ingombri a terra e semplificare la pulizia.
Bagno piccolo: misure minime e soluzioni di arredo intelligente
Un bagno piccolo non deve essere sinonimo di scomodità o mancanza di stile. Grazie a una progettazione accurata e a un arredamento intelligente, è possibile creare ambienti armoniosi, funzionali e moderni anche in pochi metri quadrati.
Layout e distribuzione degli elementi
Per un bagno di dimensioni contenute, la regola d’oro è ottimizzare la circolazione.
I layout più comuni sono:
- In linea: tutti gli elementi disposti su una sola parete (ideale per ambienti stretti e lunghi);
- Opposti: lavabo e sanitari su pareti contrapposte, con doccia o vasca in fondo;
- A “L”: per spazi quadrati o irregolari, sfrutta gli angoli in modo efficiente.
Quando possibile, l’apertura della porta dovrebbe essere verso l’esterno o sostituita da una porta scorrevole a scomparsa, per liberare spazio utile interno.
Colori, materiali e illuminazione
La percezione dello spazio è strettamente legata alla luce e ai colori.
Per amplificare visivamente un bagno piccolo:
- preferire colori chiari come bianco, beige, grigio perla o tinte pastello;
- scegliere piastrelle grandi e fughe ridotte, che creano un effetto di continuità;
- utilizzare specchi ampi e vetri trasparenti;
- inserire illuminazione diffusa a LED con punti luce su lavabo e doccia.
I materiali moderni — come il gres porcellanato effetto pietra o legno, o i rivestimenti in resina — permettono di ottenere risultati estetici raffinati anche in ambienti ridotti, mantenendo facilità di pulizia e durabilità.
Arredi multifunzione e salvaspazio
Nei bagni sotto i 4 m², ogni elemento deve assolvere più funzioni. Alcuni esempi:
- Mobile lavabo sospeso con cassetti capienti;
- Colonne verticali per riporre asciugamani e prodotti;
- Scaldasalviette che funge anche da porta-asciugamani;
- Specchi contenitori per risparmiare spazio senza rinunciare alla funzionalità;
- Lavatrice e asciugatrice impilate o inserite in un armadio chiuso, se lo spazio lo consente.
La doccia come protagonista
La vasca da bagno è spesso sacrificata nei piccoli spazi. Oggi la doccia walk-in o a filo pavimento rappresenta la soluzione più apprezzata.
I vantaggi includono:
- Maggiore accessibilità e sicurezza;
- Facilità di pulizia;
- Estetica contemporanea e minimalista;
- Possibilità di realizzare docce su misura anche in nicchie di 70-80 cm di larghezza.
Una buona scelta progettuale è inserire vetri trasparenti senza profili per ampliare visivamente la stanza.
Bagno accessibile: misure minime per persone con disabilità
Oltre alla funzionalità generale, un bagno deve poter essere accessibile e utilizzabile da tutti, comprese le persone con ridotta capacità motoria.
Le normative di riferimento sono contenute nella Legge n. 13/1989, nella Circolare ministeriale n. 1669 del 22/06/1989 e nel D.M. 236/1989.
Obiettivi delle normative
L’obiettivo è garantire a chiunque, indipendentemente dalle proprie condizioni fisiche, la possibilità di:
- accedere al locale;
- utilizzare i servizi igienici in autonomia o con l’assistenza di un accompagnatore;
- muoversi in sicurezza, senza ostacoli o barriere architettoniche.
Dimensioni minime di un bagno accessibile
Un bagno accessibile deve rispettare le seguenti misure:
- Dimensione minima del locale: 180 x 180 cm (3,24 m²) per garantire lo spazio di rotazione di una sedia a ruote (diametro minimo 150 cm);
- Porta di accesso: luce netta minima di 85 cm, con apertura verso l’esterno o scorrevole;
- Spazio libero di manovra: davanti a ogni sanitario deve esserci almeno 100 cm di profondità e 80 cm di larghezza;
- Pavimentazione: antisdrucciolo, senza dislivelli o soglie superiori a 2 cm.
Disposizione e caratteristiche dei sanitari
| Elemento | Requisiti principali |
|---|---|
| WC | Altezza seduta 45–50 cm; spazio laterale libero di almeno 100 cm su un lato e 80 cm sull’altro; presenza di maniglioni di sostegno; scarico a parete consigliato. |
| Lavabo | Altezza del bordo superiore 80 cm; spazio libero sottostante di almeno 70 cm per il passaggio delle gambe; rubinetteria a leva lunga o sensore. |
| Doccia | A filo pavimento, dimensioni minime 90×90 cm; presenza di sedile ribaltabile e corrimano. |
| Specchio e accessori | Posizionati tra 90 e 170 cm dal pavimento per essere visibili e accessibili anche da seduti. |
Design inclusivo
L’accessibilità non deve sacrificare l’estetica: oggi esistono soluzioni di design per l’arredo bagno accessibile che coniugano eleganza e praticità.
Maniglioni integrati, sedute pieghevoli e lavabi ergonomici possono essere realizzati con materiali di pregio, mantenendo un look moderno e coerente con il resto della casa.
Errori da evitare nella progettazione di un bagno piccolo
- Ignorare le distanze funzionali: anche pochi centimetri in meno possono rendere scomodo l’utilizzo dei sanitari.
- Non prevedere sufficiente illuminazione: una luce scarsa accentua la sensazione di chiusura.
- Trascurare la ventilazione: fondamentale per evitare muffe e condensa.
- Scegliere materiali scuri o opachi: rimpiccioliscono visivamente l’ambiente.
- Sottovalutare la manutenzione: prediligere superfici lavabili e durature.
Conclusioni
Progettare un bagno piccolo richiede equilibrio tra normativa, funzionalità e design.
Le misure minime garantiscono sicurezza e comfort, mentre le soluzioni di arredo intelligente permettono di trasformare anche pochi metri quadrati in un ambiente pratico e piacevole.
Parallelamente, il rispetto delle norme sull’accessibilità assicura inclusione e fruibilità per tutti gli utenti, senza rinunciare all’estetica.
In definitiva, la chiave del successo è una progettazione attenta e su misura, che tenga conto non solo delle dimensioni fisiche, ma anche del modo in cui le persone vivono e utilizzano quotidianamente questo spazio essenziale della casa.
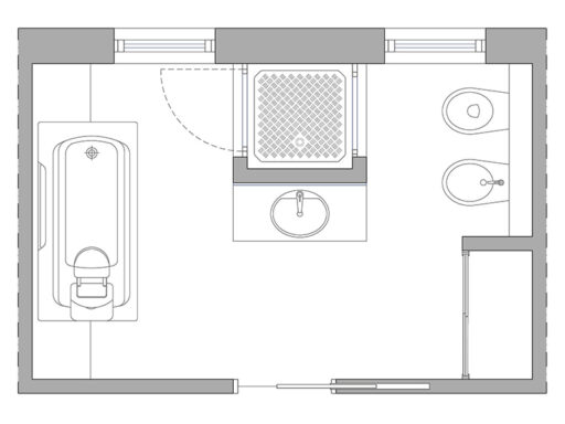
Il file dwg dell’immagine di copertina è disponibile qui:
https://www.archweb.com/cad-dwg/soluzioni-distributive-bagni-2×2/