Registrato

Collegamenti verticali 10

File dwg in scala 1:100 (metri)

 

Collegamenti verticali 10
 

Blocchi CAD consigliati

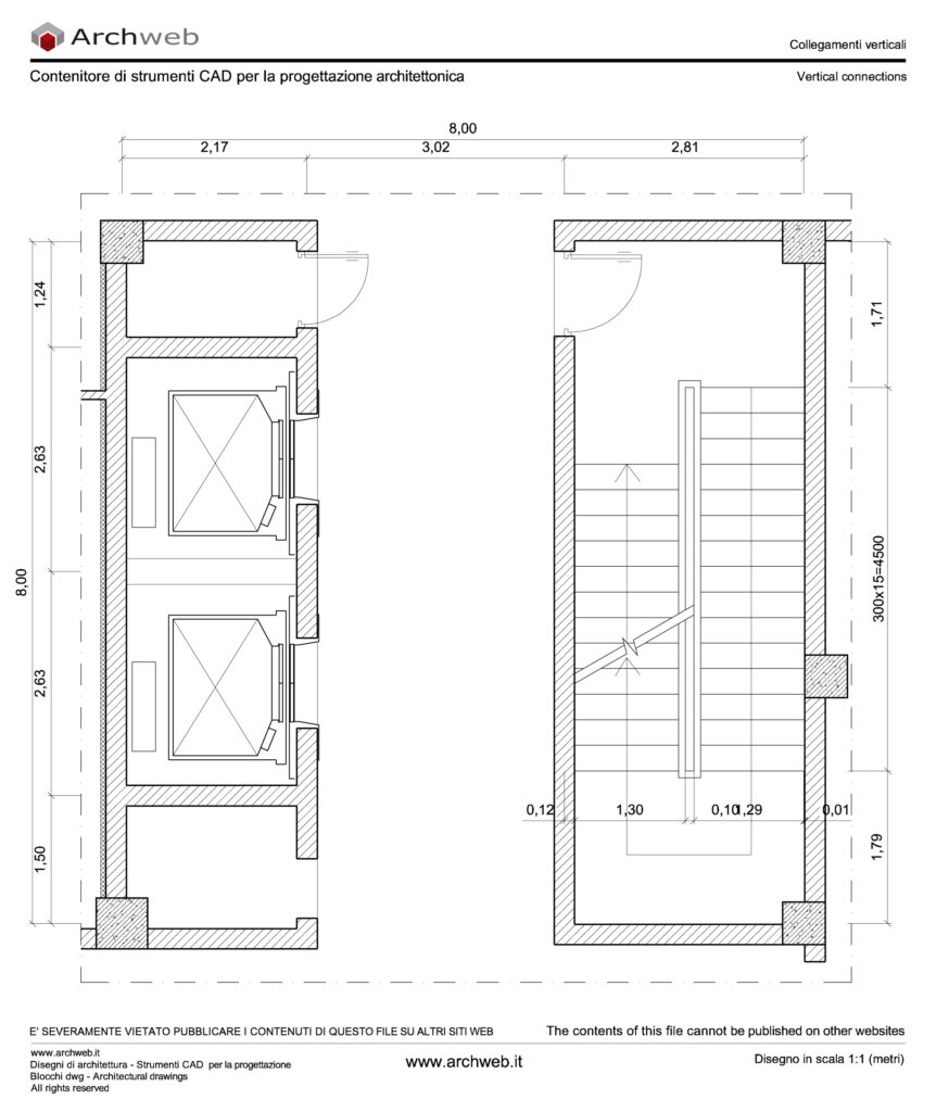
Collegamenti verticali 12

DWG

Blocco ascensori scale servizi 13

DWG

Blocco ascensori scale servizi 11

DWG

Blocco ascensori scale servizi 12

DWG

Blocco ascensori scale servizi 10

DWG

Collegamenti verticali 15

DWG

Collegamenti verticali 02

DWG

Collegamenti verticali 16

DWG

Come funziona il download?

Per scaricare i file dal sito Archweb.com esistono 4 tipologie di download, identificate da 4 colori differenti. Scopri gli abbonamenti

Gratuito
per tutti

Gratuito
per utenti Archweb

Abbonamento
per utenti Premium

Acquisto singolo
paga 1 e scarica 1