Impianti termali
Valorizzazione sostenibile delle sorgenti naturali
Gli impianti termali rappresentano una delle più antiche e al tempo stesso più moderne espressioni dell’interazione tra uomo e natura. Nati dall’esigenza di sfruttare le sorgenti di acque calde che sgorgano spontaneamente dal sottosuolo, questi complessi hanno attraversato la storia trasformandosi da semplici luoghi di cura a veri e propri centri di benessere, salute e socialità. Oggi le terme non sono solo spazi dedicati alla terapia idrogeologica, ma si configurano come infrastrutture integrate in grado di unire funzionalità, sostenibilità ambientale e valorizzazione del paesaggio. La progettazione di un impianto termale moderno richiede infatti un approccio multidisciplinare, capace di coniugare geologia, architettura, ingegneria impiantistica ed esigenze turistiche, nel rispetto delle peculiarità naturali del sito e delle risorse idriche disponibili.
Fenomeno naturale delle sorgenti termali
Origine geologica
Le sorgenti termali si originano da un processo idrogeologico complesso. L’acqua meteorica (pioggia o neve) penetra negli strati permeabili della crosta terrestre, raggiungendo profondità variabili. Qui si riscalda per effetto del gradiente geotermico (mediamente 3 °C ogni 100 metri) e, in alcuni casi, grazie alla vicinanza di corpi magmatici.
Il ciclo prevede:
- Infiltrazione: l’acqua penetra attraverso rocce calcaree, fratture o faglie.
- Circolazione profonda: raggiunge strati caldi, arricchendosi di minerali.
- Risorgenza: riemerge in superficie attraverso punti di frattura, mantenendo temperature spesso comprese tra 30 e 100 °C.
Classificazione delle acque termali
Le acque termali si classificano in base a diversi criteri:
- Temperatura: ipotermali (< 20 °C), mesotermali (20–35 °C), termali (35–50 °C), ipertermali (> 50 °C).
- Composizione chimica: solfuree, salsobromoiodiche, bicarbonate, ferruginose, radioattive, ecc.
- Effetti terapeutici prevalenti: rilassanti, antinfiammatorie, disintossicanti, stimolanti della circolazione.
Aspetti ecologici e naturalistici delle terme
Le aree termali rappresentano ecosistemi particolari, spesso caratterizzati da microclimi unici e nicchie biologiche. In prossimità delle sorgenti calde si sviluppano alghe termofile, batteri estremofili e particolari comunità vegetali adattate all’ambiente ricco di minerali.
Dimensione terapeutica e sociale degli impianti termali
Proprietà terapeutiche
Le acque termali hanno storicamente avuto funzioni terapeutiche certificate da discipline come l’idrologia medica. I principali benefici riguardano:
- apparato muscoloscheletrico (azione miorilassante, antidolorifica);
- sistema nervoso (effetto ansiolitico e riequilibrante).
- apparato respiratorio (inalazioni di vapori solforosi);
- apparato cutaneo (azione detergente, rigenerante e antinfiammatoria).
Ruolo sociale e culturale delle terme
Nell’antichità le terme erano spazi pubblici polifunzionali. Oggi, con una domanda crescente di turismo del benessere, le terme naturali si collocano come attrattori turistici capaci di integrare salute, svago e contatto con la natura.
Impianti termali: dal fenomeno naturale alla struttura funzionale
Approccio progettuale
Trasformare una sorgente naturale in un impianto termale richiede una progettazione integrata, che contempli:
- Rilevazione idrogeologica: studio della portata, temperatura e stabilità della sorgente.
- Tutela del paesaggio: minimizzare l’impatto ambientale e mantenere l’autenticità del sito.
- Organizzazione funzionale: predisporre vasche, percorsi d’acqua, spogliatoi, aree relax, con adeguati servizi igienico-sanitari.
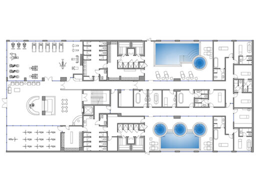
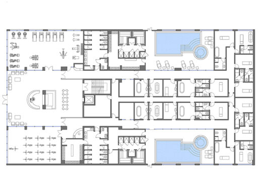
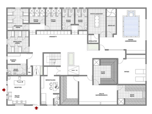
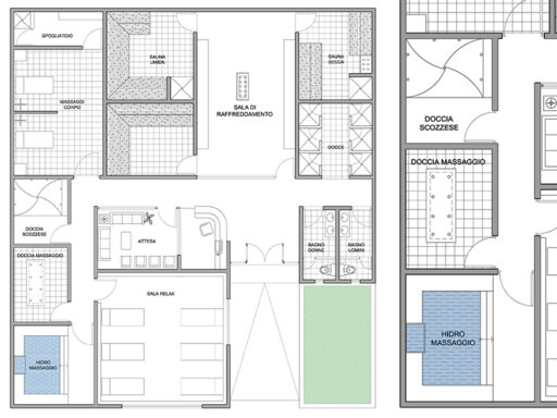
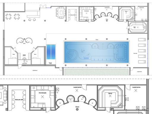
Strutture necessarie per le terme
Un impianto termale contemporaneo richiede spazi organizzati secondo criteri di funzionalità e comfort:
Vasche termali
Le vasche termali vanno progettate con particolare attenzione alla forma, alla profondità e ai rivestimenti. L’uso di materiali naturali come pietra, travertino o marmi chiari non solo garantisce durabilità e resistenza all’acqua calda, ma contribuisce anche a creare un’atmosfera di benessere e continuità con l’ambiente circostante. La geometria può variare da linee morbide e organiche, che evocano bacini naturali, a soluzioni più regolari e minimali, ideali per contesti contemporanei.
Percorsi idroterapici
I percorsi idroterapici si basano sull’alternanza caldo-freddo, che stimola la circolazione e favorisce il benessere generale. Tra le soluzioni più diffuse troviamo i camminamenti vascolari, con vasche a diversa temperatura e fondi in ciottoli per massaggiare la pianta del piede, e le aree dedicate a getti idromassaggio, utili per tonificare e rilassare i muscoli. L’articolazione degli spazi e la scelta dei materiali devono accompagnare l’utente in un percorso graduale e armonioso, garantendo comfort e sicurezza.
Aree di servizio
Fondamentali per il corretto funzionamento di un centro benessere, le aree di servizio comprendono spogliatoi organizzati con armadietti, docce e zone di cambio, la reception con spazi di accoglienza e attesa, e le aree tecniche destinate agli impianti di trattamento e ricircolo delle acque. Questi ambienti, pur essendo secondari rispetto alle aree destinate al pubblico, devono essere progettati con attenzione alla praticità, all’igiene e all’efficienza gestionale, così da garantire un’esperienza fluida e sicura per gli utenti.
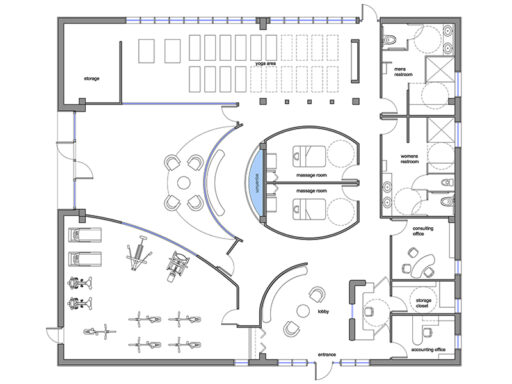
Strutture complementari
Accanto alle funzioni principali, un centro termale può integrare centri benessere dedicati a trattamenti estetici e massaggi, palestre e spazi per l’attività fisica, oltre ad aree ristorazione che completano l’esperienza di relax e salute. Questi ambienti contribuiscono ad ampliare l’offerta, trasformando il complesso in un luogo polifunzionale capace di rispondere a diverse esigenze: dal benessere psicofisico alla socialità, dall’attività sportiva al ristoro.
Criteri progettuali di sicurezza
- Controllo delle temperature: prevenire rischi di ustioni.
- Monitoraggio chimico: garantire che le concentrazioni minerali restino nei limiti terapeutici.
- Accessibilità universale: percorsi per disabili, rampe e ascensori.
- Sicurezza antincendio e antisismica: fondamentali per strutture pubbliche.
Valorizzazione antropica delle terme
Dalla sorgente al complesso termale
Il valore delle terme dipende dalla capacità di trasformare la risorsa naturale in prodotto fruibile. Il processo comprende:
- Captazione e canalizzazione: proteggere la sorgente e convogliare l’acqua in vasche o impianti.
- Filtrazione e controllo: purificazione e monitoraggio costante della qualità.
- Distribuzione: organizzare un circuito idraulico efficiente.
Integrazione con il territorio
Un complesso termale deve essere visto come nodo di una rete territoriale più ampia.
Connessione con percorsi naturalistici: un complesso termale non deve essere concepito come struttura isolata, ma come nodo all’interno di una rete territoriale più ampia. La sua efficacia cresce quando dialoga con il contesto circostante, integrandosi con percorsi naturalistici, sentieri escursionistici, piste ciclabili e aree verdi attrezzate. Questa connessione favorisce non solo la mobilità lenta e sostenibile, ma anche una fruizione più ricca e completa, che unisce salute, benessere e scoperta del paesaggio.
Sinergia con turismo culturale: il complesso termale può diventare un punto di partenza o di arrivo per itinerari che valorizzano il patrimonio locale. La sinergia con borghi storici, musei e siti archeologici arricchisce l’esperienza dei visitatori, creando un’offerta integrata che combina relax, benessere e scoperta culturale. Questa interconnessione permette di diversificare il pubblico, allungare i tempi di permanenza e rafforzare l’identità del territorio.
Produzione locale: un complesso termale può diventare anche occasione di valorizzazione delle realtà produttive locali: dagli agriturismi che offrono ospitalità autentica, alle filiere enogastronomiche che mettono in risalto i prodotti tipici, fino all’artigianato che custodisce tradizioni e saperi del territorio. Integrare queste risorse nell’offerta complessiva significa non solo sostenere l’economia locale, ma anche offrire ai visitatori un’esperienza più ricca, radicata e identitaria.
Esempi di valorizzazione delle terme naturali
- Tivoli (Italia): sorgenti integrate con resort e percorsi naturalistici.
- Pamukkale (Turchia): travertini naturali con gestione del flusso turistico.
- Rotorua (Nuova Zelanda): utilizzo delle acque termali anche per la produzione energetica.
Le Terme di Roma – Acque Albule a Tivoli. Vedi la galleria fotografica ►
Terme naturali: sostenibilità e progettazione integrata
Linee guida di sostenibilità
- Risparmio idrico: circuiti chiusi di ricircolo dove possibile.
- Efficienza energetica: sfruttare il calore geotermico per riscaldamento e produzione elettrica.
- Materiali naturali: utilizzo di pietra locale, legno certificato, tecniche costruttive a basso impatto.
- Integrazione paesaggistica: forme architettoniche organiche, inserimento nel contesto naturale.
Approccio bioclimatico
Le strutture termali possono sfruttare:
- Illuminazione naturale: ampie vetrate orientate.
- Ventilazione naturale: sfruttamento dei gradienti termici.
- Coperture verdi: miglioramento microclimatico e isolamento.
Monitoraggio e manutenzione
- Controllo continuo: qualità delle acque, parametri chimici e microbiologici.
- Sistemi digitali di gestione: sensori IoT per temperatura, flussi e consumi.
- Piani di manutenzione preventiva: essenziali per garantire sicurezza e longevità.
Aspetti progettuali degli impianti termali: modelli funzionali
- Terme integrate nel paesaggio
- Vasche scavate nella roccia.
- Strutture minimali che si fondono con la vegetazione.
- Percorsi sensoriali che uniscono acqua, pietra e luce.
- Terme urbane
- Recupero di sorgenti all’interno delle città.
- Strutture multifunzionali collegate a centri culturali e sportivi.
- Spazi coperti con design contemporaneo.
- Terme come hub energetici
- Utilizzo diretto del calore geotermico.
- Integrazione con reti di teleriscaldamento urbano.
- Possibile sinergia con serre o impianti industriali a basso consumo.
Sfide e prospettive future delle terme naturali
Pressione antropica e tutela ambientale
Un eccessivo afflusso turistico può compromettere la qualità delle sorgenti e degli ecosistemi circostanti. Servono quindi regolamentazioni di accesso, sistemi di prenotazione e percorsi guidati.
Innovazione tecnologica nelle terme
- Sistemi di realtà aumentata per la valorizzazione turistica.
- Trattamenti personalizzati basati su analisi biometriche.
- Edifici smart capaci di autoregolarsi su consumi e temperature.
Resilienza climatica
Il cambiamento climatico può alterare i regimi idrici sotterranei. La gestione sostenibile deve quindi prevedere scenari di resilienza, piani di monitoraggio a lungo termine e protocolli di emergenza.
Impianti termali: fasi di progettazione
Queste fasi si inseriscono nel più ampio quadro di progettazione integrata, che unisce ingegneria, architettura, medicina termale e sostenibilità ambientale.
1. Analisi preliminare
- Studio idrogeologico: caratterizzazione della sorgente (portata, temperatura, composizione chimica).
- Indagini ambientali e paesaggistiche: valutazione ecosistemi locali, vincoli naturalistici, impatto visivo.
- Analisi socio-economica: domanda potenziale, target turistico-sanitario, modelli di business.
- Normativa e autorizzazioni: verifiche con enti sanitari, ambientali e urbanistici.
2. Concept progettuale impianti termali
- Definizione del masterplan: organizzazione generale degli spazi (vasche, percorsi, servizi).
- Individuazione di un modello gestionale (centro termale puro, resort integrato, struttura urbana).
- Prime scelte architettoniche: materiali, linguaggio estetico, integrazione con il paesaggio.
- Studio della sostenibilità energetica (uso calore geotermico, energie rinnovabili, sistemi passivi).
3. Progetto preliminare
- Schema distributivo: vasche termali, cabine trattamenti, spogliatoi, aree relax, percorsi interni ed esterni.
- Infrastrutture idrauliche: captazione, filtrazione, accumulo e distribuzione delle acque.
- Impianti tecnologici: climatizzazione, illuminazione, riciclo idrico, ventilazione naturale/forzata.
- Accessibilità universale: percorsi per disabili, rampe, segnaletica inclusiva.
4. Progetto definitivo
- Dettaglio costruttivo di vasche, rivestimenti, sistemi impiantistici.
- Calcoli strutturali (antisismica, resistenza termica, durabilità materiali).
- Integrazione di spazi complementari (ristorazione, wellness, palestre, aree mediche).
- Simulazioni energetiche e ambientali.
- Elaborati grafici: piante, sezioni, rendering, modelli BIM.
5. Progetto esecutivo impianti termali
- Disegni costruttivi di dettaglio.
- Capitolati tecnici e computi metrici estimativi.
- Definizione fornitori e materiali.
- Piani di sicurezza in cantiere.
6. Realizzazione
- Cantierizzazione: protezione sorgente e ambiente naturale.
- Opere civili e impiantistiche: costruzione vasche, edifici di servizio, posa impianti.
- Finiture e arredi: con materiali naturali, resistenti e sostenibili.
- Collaudi tecnici: impianti idraulici, elettrici, trattamento acqua.
7. Gestione e manutenzione delle terme
- Monitoraggio qualità acque (chimica, microbiologia).
- Manutenzione programmata di vasche e impianti.
- Aggiornamenti tecnologici (sistemi smart di gestione).
- Strategie di promozione e integrazione con il territorio.
Conclusioni
Le terme sono un patrimonio unico, sintesi perfetta tra fenomeno naturale e ingegno umano. L’acqua che sgorga dalla terra, arricchita di minerali e calore, diventa risorsa terapeutica, sociale e turistica quando l’uomo riesce a valorizzarla con strutture funzionali ben progettate.
La sfida contemporanea è conciliare funzionalità, benessere e sostenibilità. Solo un approccio integrato, che consideri aspetti geologici, ecologici, architettonici e sociali, può garantire che gli impianti termali restino non solo luoghi di piacere e salute, ma anche modelli di equilibrio tra uomo e natura.





